Skip to the content
logo mainlogo darklogo light
  • Projects
  • About
  • Contact
logo main
  • Projects
  • About
  • Contact
logo main
  • Projects
  • About
  • Contact

ELENION KINDERGARDEN – CYPRUS

ELENION KINDERGARDEN – CYPRUS

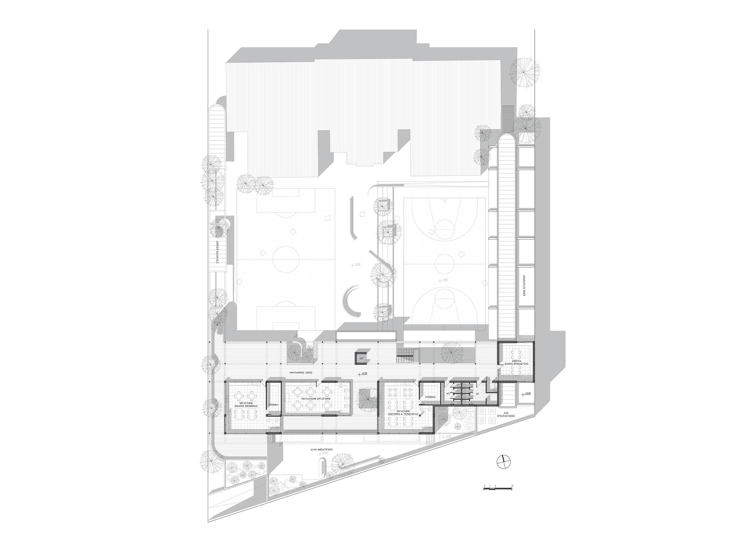
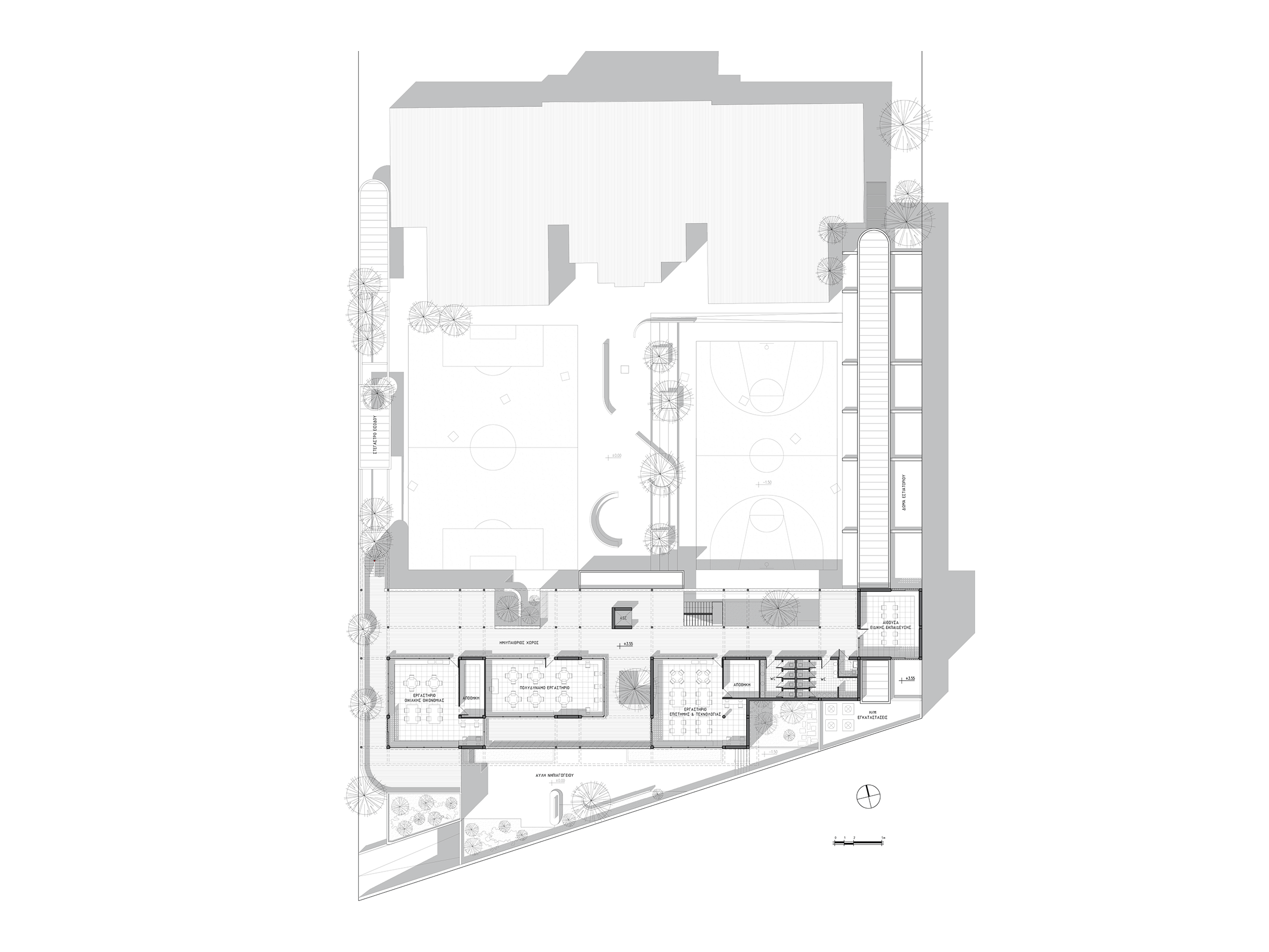
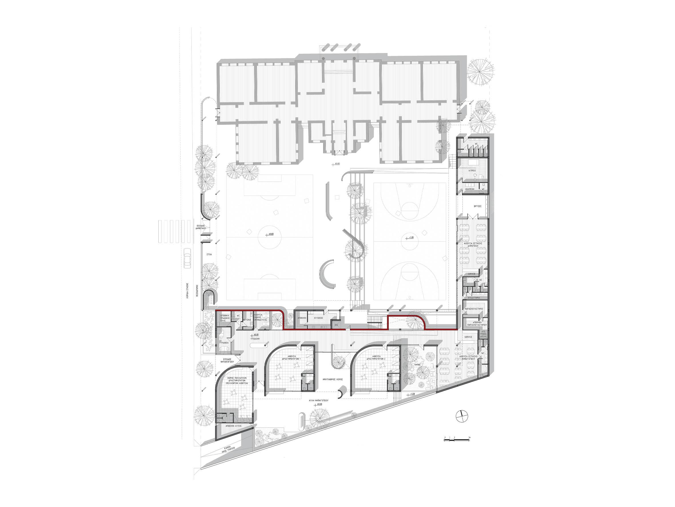
Η μελέτη αποτελεί συμμετοχή στον αρχιτεκτονικό διαγωνισμό για τη μελέτη ενός νέου νηπιαγωγείου, και ταυτόχρονα την επέκταση του υπάρχοντος διατηρητέου Ελένειου Δημοτικού Σχολείου στην Λευκωσία της Κύπρου. 

 

Βασική πρόθεση αποτέλεσε η νέα προσθήκη να είναι πιο χαμηλή από το υπάρχον κτίριο, δημιουργώντας μια μεγάλη χειρονομία ήπιας αγκαλιάς η οποία βάζει στο κέντρο το παλιό κτίριο, αναδεικνύοντάς το. 

 

Τυπολογικά, το υπάρχον κτίριο αποτελείται από ένα βασικό επίμηκες πρίσμα η μεγάλη πλευρά του οποίου ανοίγεται προς το νότο  εκμεταλλευόμενη τον καλό προσανατολισμό . Το νέο κτίριο ακολουθεί μια αντίστοιχη λογική. Καταρχήν διατάσσει έναν νέο βασικό επιμήκη άξονα παράλληλα στο παλαιό κτίριο  στον οποίο τοποθετούνται όλες οι εκπαιδευτικές δραστηριότητες, οι οποίες επωφελούνται από το νότιο φως. Αυτή η χειρονομία κόβει τον υπαίθριο χώρο σε δύο τμήματα, δύο ξεχωριστές αυλές, οι οποίες απευθύνονται στο δημοτικό  και στο νηπιαγωγείο .

 

Στη συνέχεια, δυο μικρότεροι άξονες, στα άκρα του αρχικού, έρχονται να συγκροτήσουν ένα συνολικό σχηματισμό ασύμμετρου Ζ. Οι δυο γωνιές που εμπεριέχονται σε αυτό το σχήμα δημιουργούν δύο αγκαλιές που έρχονται να προστατέψουν την κάθε αυλή. Στους δύο αυτούς μικρότερους άξονες έρχονται να τοποθετηθούν μη-εκπαιδευτικές χρήσεις που υποστηρίζουν τη λειτουργία του σχολείου.

 

Προκειμένου να εξασφαλιστεί η λειτουργική σύνδεση του παλαιού με το νέο κτίριο έχει δημιουργηθεί ένα ‘δαχτυλίδι’ περιμετρικής κίνησης το οποίο μπορεί να διατρέχει τόσο το παλιό όσο και το νέο κτίριο. Το δαχτυλίδι αυτό συγκροτείται από ένα ελαφρύ μεταλλικό στέγαστρο το οποίο έρχεται να δέσει το παλιό με το νέο κτίριο σε έναν άρρηκτο δεσμό. Ο δεσμός αυτός έχει τόσο συμβολική, όσο και λειτουργική σημασία, επιτρέποντας τη στεγασμένη κίνηση μεταξύ των δυο κτιριακών ενοτήτων.

Architects:
Λεωνίδας Κουτσουμπός, Αναστάσης Μαθιουδακης, Νίκος Ρώσσης, Στέλιος Γάτσινος
Distinction:
3o Βραβείο
Area:
1500 m2
Location:
Λευκωσία, Κύπρος
Project Year:
2023
Date:

November 4, 2021

Category:
Architectural Competitions
Share:
    Follow us on instagram:
    Tel: +30 6983584846
    anastasis.mathioudakis@gmail.com
    Heraklion Crete / Athens
    © 2025 Dreta Architecture, All Rights Reserved
    Web Design & Development by George Pitsounis

    Duis aute irure dolor in reprehenderit in voluptate velit esse cillum dolore eu

    Tel: +(012) 345 6789
    brok@qodeinteractive.com
    7524 14th Avenue NY