KARADEIO FOUNDATION EXPASION AND RESTORATION – CHIOS
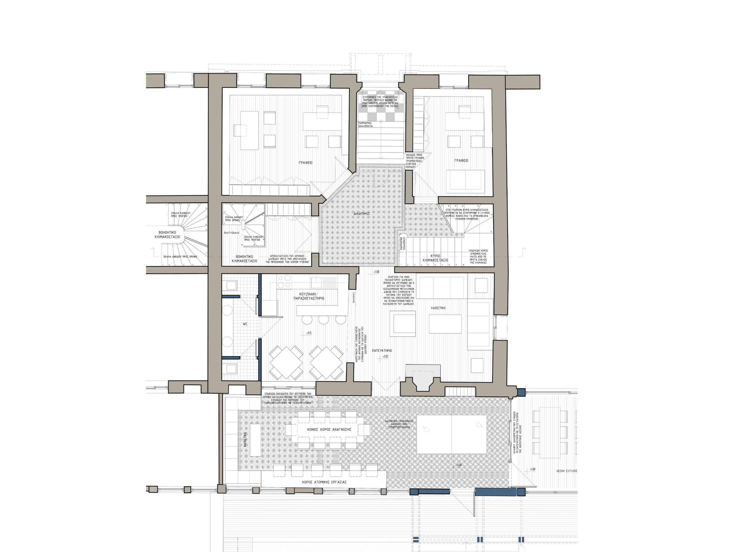
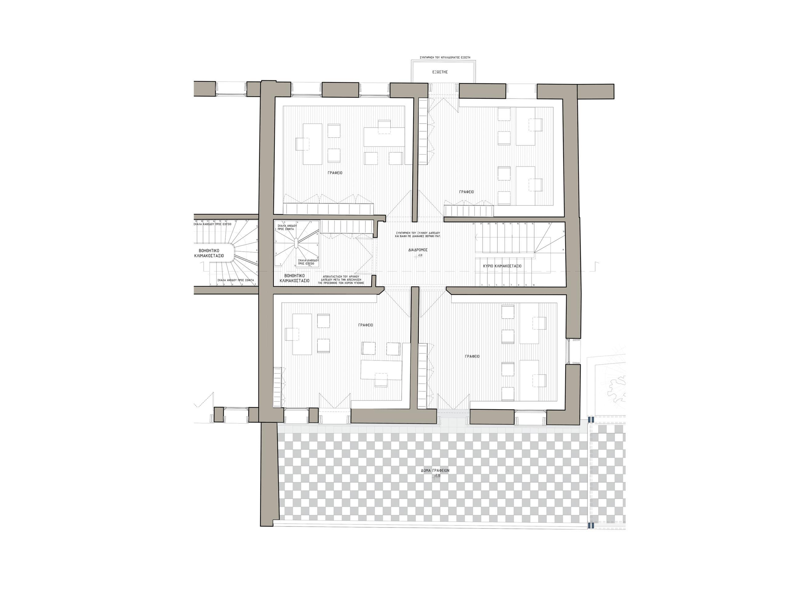
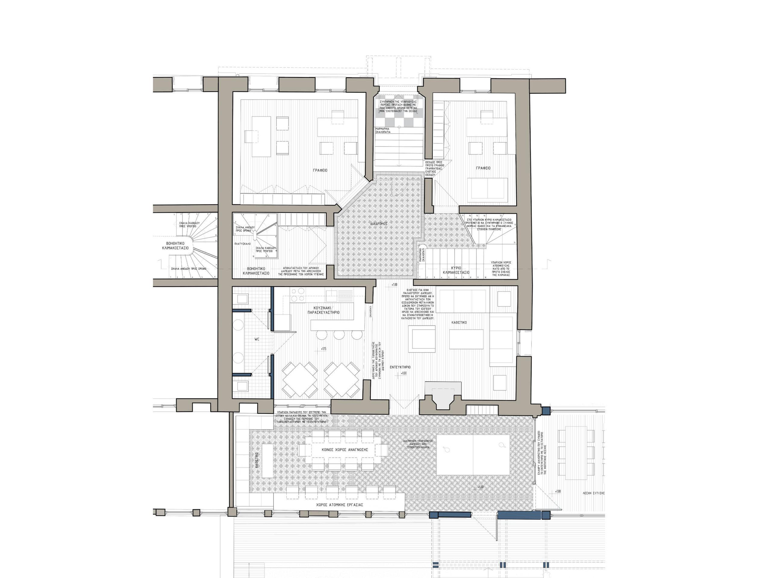
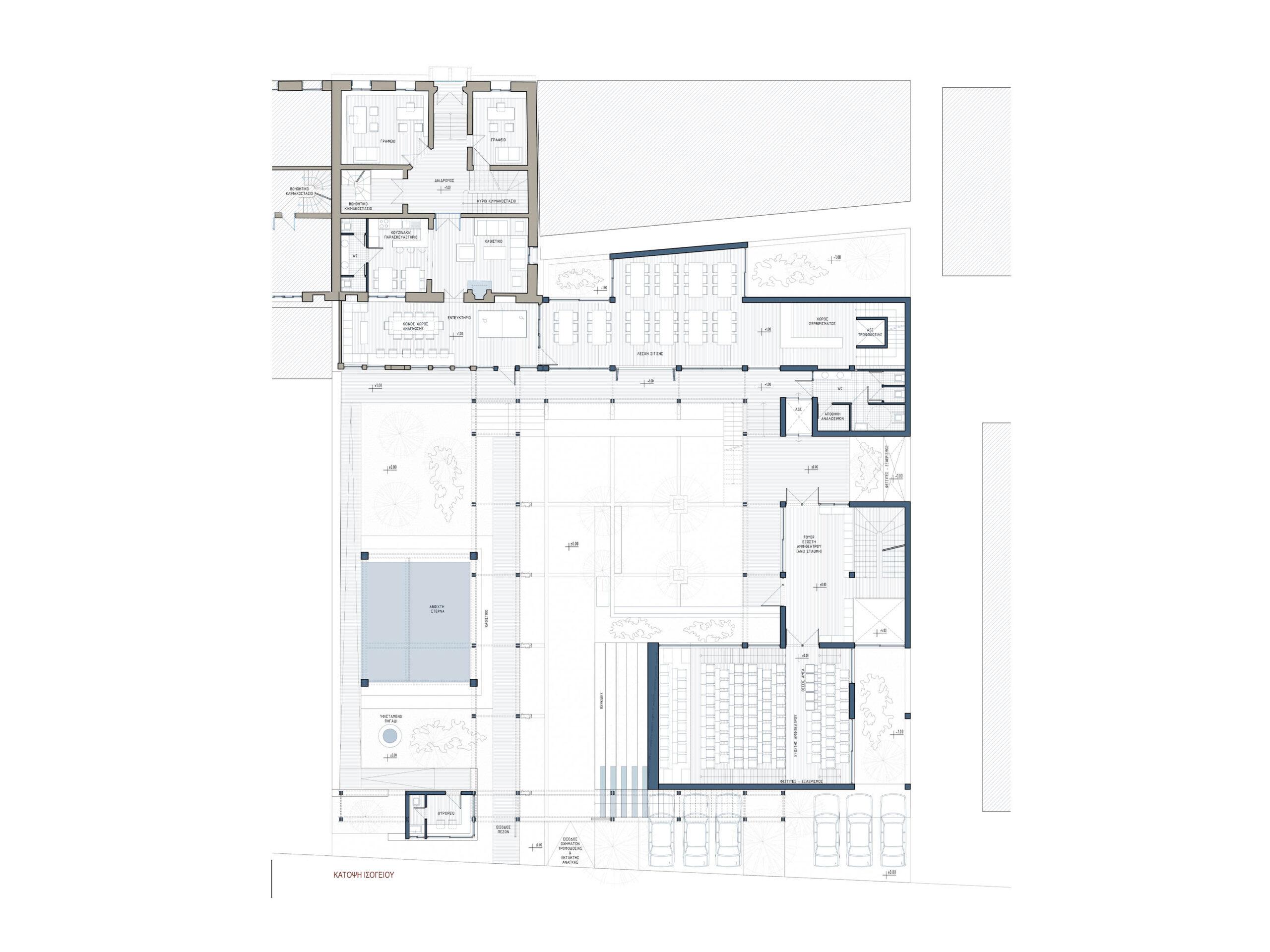
Η βασική αρχή συνθετικής συγκρότησης της πρότασης για το νέο κτίριο προκύπτει από την επιθυμία δημιουργίας μιας εσωτερικής αυλής-κήπου, η οποία λειτουργεί ως ο πυρήνας του συγκροτήματος. Η επιλογή αυτή βασίζεται σε δύο βασικές ιστορικές αναφορές. Αφενός, στους παραδοσιακούς αρχοντικούς πύργους του Κάμπου της Χίου, όπως αυτοί αποτυπώνονται από τον Δημήτρη Πικιώνη, όπου το περιβόλι οργανώνεται γύρω από μια έκκεντρη αξονική διαδρομή στεγασμένη με πέργκολα και σε άμεση σχέση με υπαίθρια στέρνα. Αφετέρου, στις εσωτερικές αυλές των αρχοντικών της Γένοβας, οι οποίες χαρακτηρίζονται από έντονη εσωστρέφεια και περιμετρικές στοές που συχνά αναπτύσσονται κατ’ όροφο.
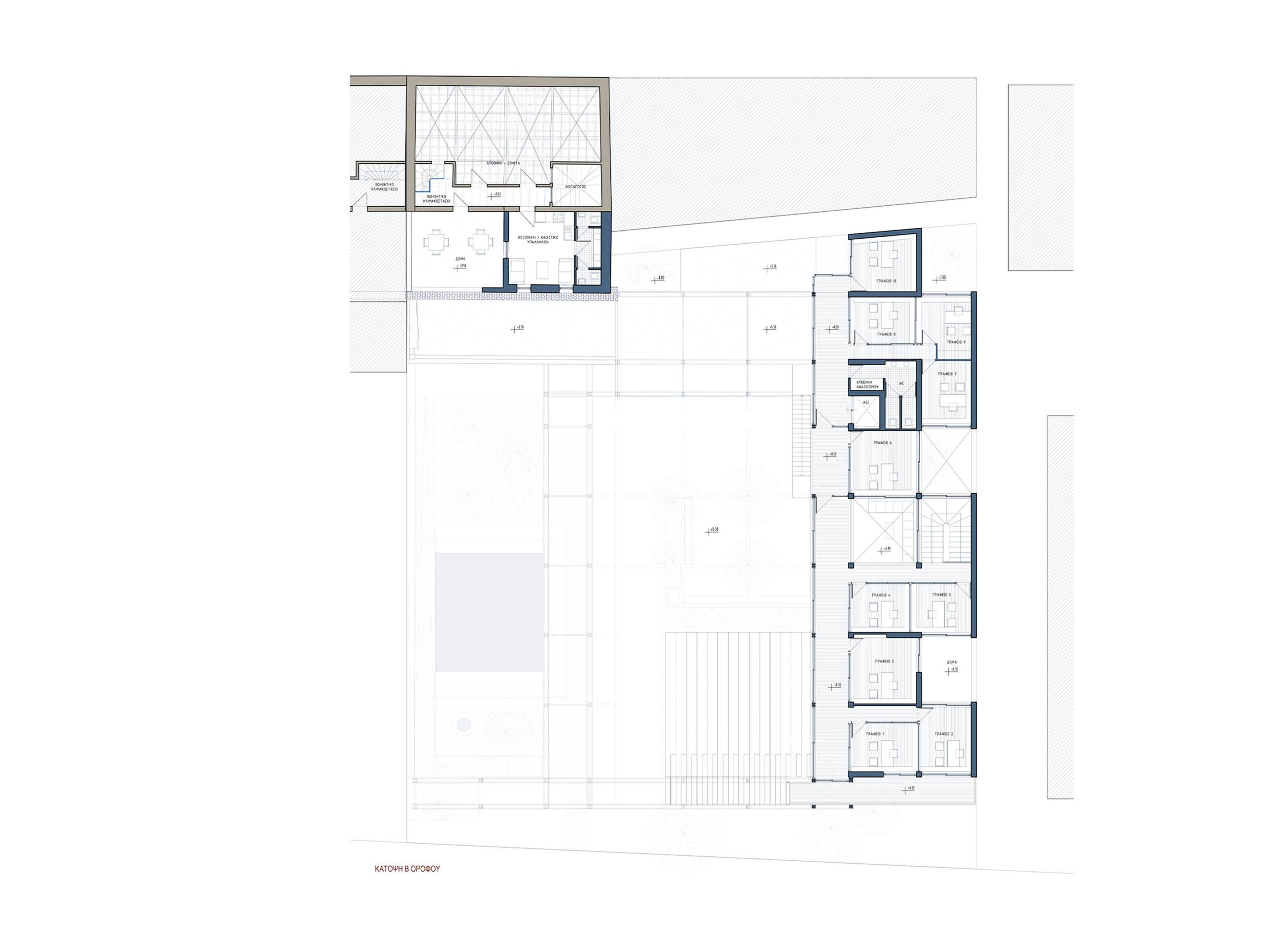
Για τη διαμόρφωση της αυλής, ο όγκος του νέου κτιρίου αναπτύσσεται περιμετρικά του οικοπέδου σε τυπολογία ανισοσκελούς Π. Η ανοιχτή πλευρά του συμπληρώνεται από τον υφιστάμενο μαντρότοιχο και την παλαιά στέρνα, ενώ η κύρια είσοδος τοποθετείται στην οδό Χρίστου Μάντικα, σε άμεση συσχέτιση με τα υπόλοιπα πανεπιστημιακά κτίρια και ειδικά το Μιχάλειο. Παράλληλα, προτείνεται ήπια κυκλοφοριακή διαμόρφωση των γύρω οδών, με στόχο την ασφαλή και άνετη κίνηση των πεζών.
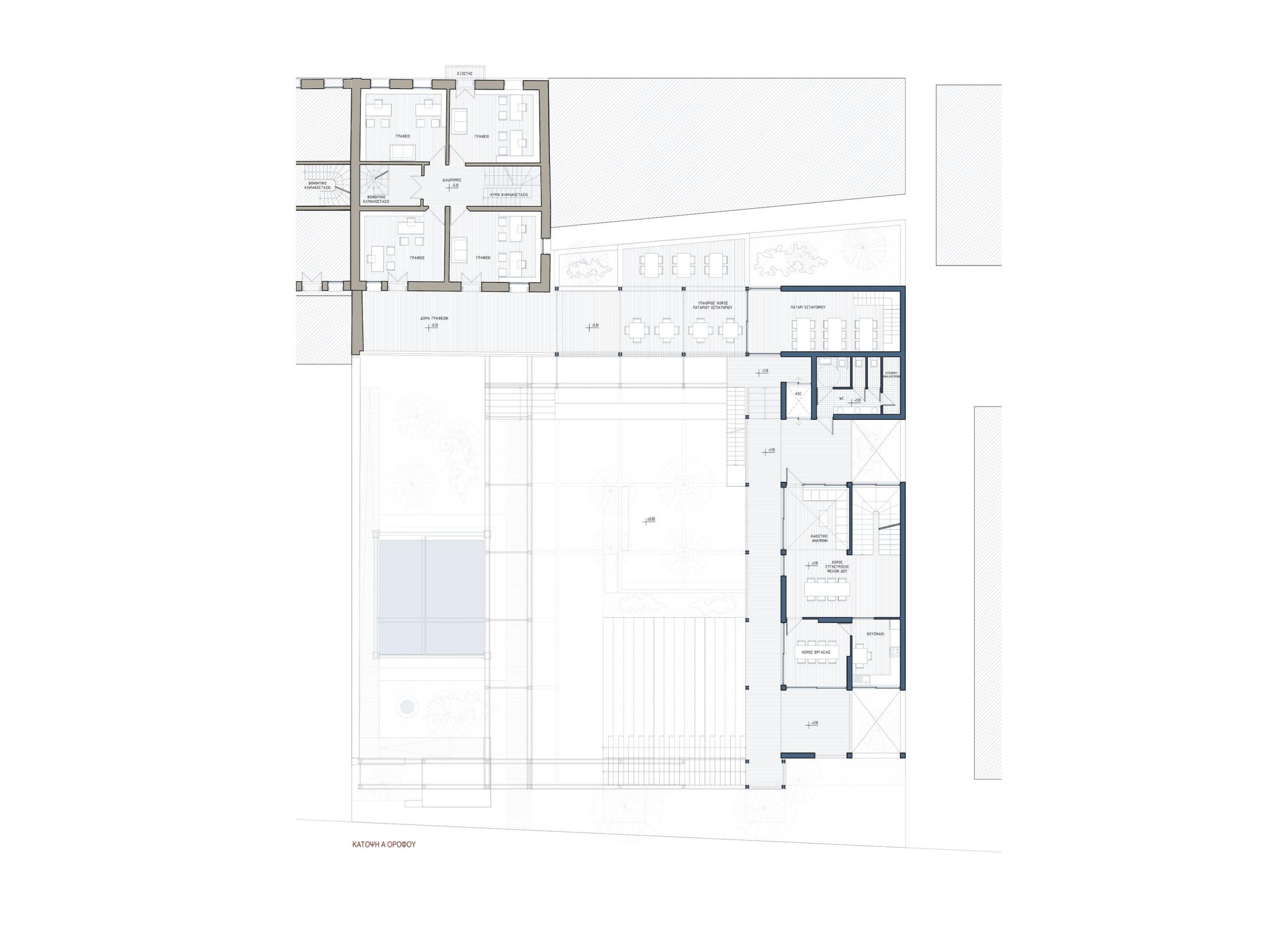
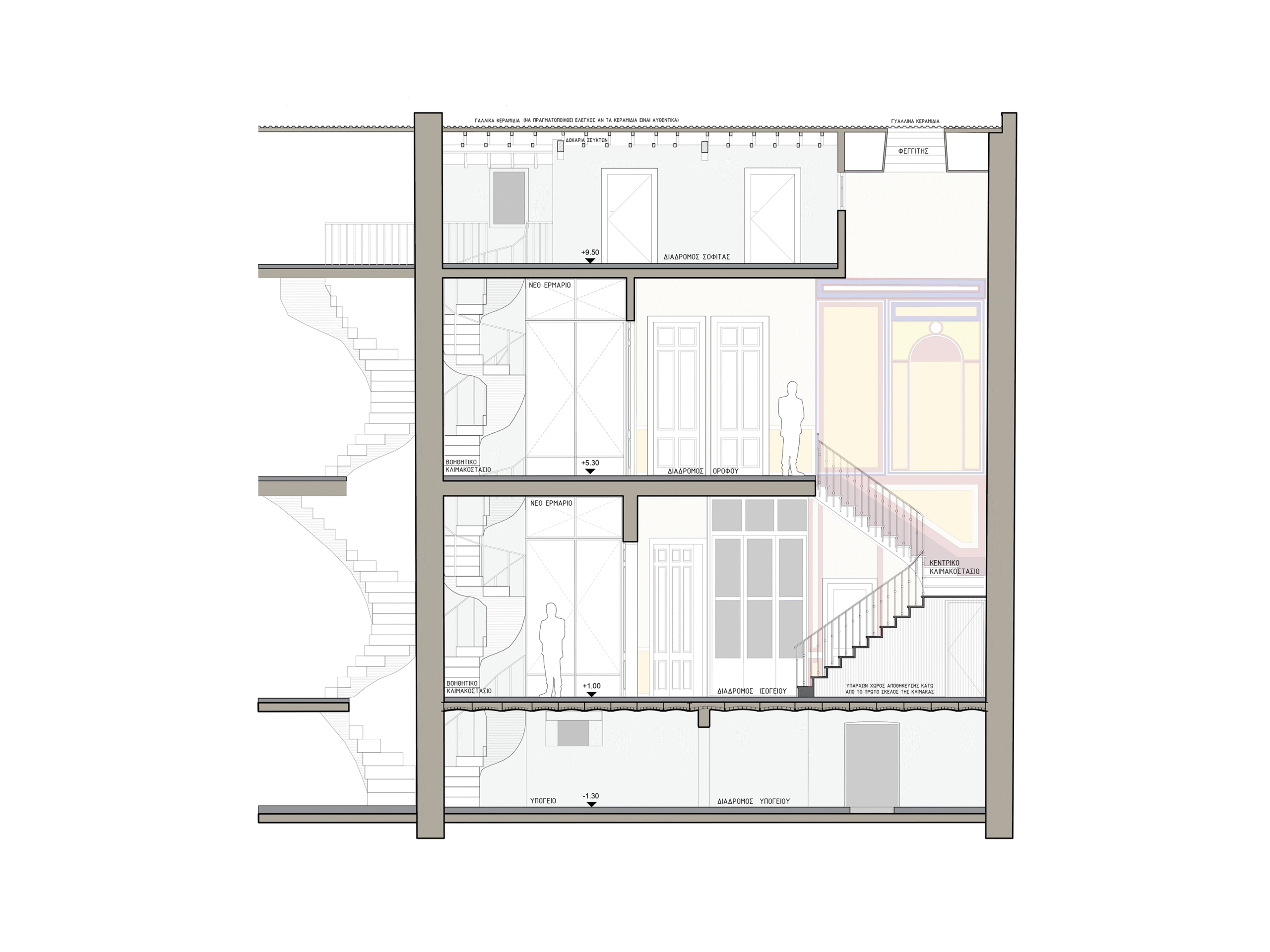
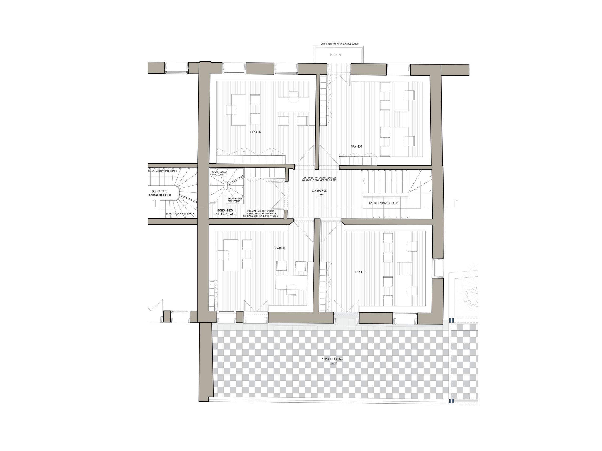
Στο εσωτερικό του Π διαμορφώνεται ένα κλειστό τετράγωνο από ελαφριά ξύλινη κατασκευή, το οποίο εντείνει την εσωστρέφεια και ορίζει ακόμη πιο καθαρά την αυλή. Η κατασκευή αυτή, σε αντιδιαστολή με το εμφανές σκυρόδεμα και τους σοβατισμένους τοίχους του κύριου όγκου, φιλοξενεί την είσοδο, το φυλάκιο, πέργκολες και περιμετρικές στοές.
Λειτουργικά, το πρώτο σκέλος του Π στεγάζει τη λέσχη σίτισης σε άμεση συνέχεια με τη φοιτητική λέσχη του υφιστάμενου κτιρίου. Το κύριο σκέλος, τριώροφο και τοποθετημένο στη νότια πλευρά του οικοπέδου, φιλοξενεί το φουαγιέ του αμφιθεάτρου και τα γραφεία των μελών ΔΕΠ, προστατεύοντας παράλληλα την αυλή από την παρακείμενη πολυκατοικία. Το τρίτο σκέλος περιλαμβάνει το αμφιθέατρο, κατά κύριο λόγο υπόγειο, με δώμα που λειτουργεί ως υπαίθριο αμφιθέατρο σε άμεση σχέση με την είσοδο.
Η επανασχεδιασμένη δεξαμενή, η κεντρική αυλή και το υπαίθριο αμφιθέατρο συγκροτούν έναν ενιαίο πυρήνα κοινωνικής ζωής του πανεπιστημίου. Τέλος, τα διάτρητα μεταλλικά πανέλα της ξύλινης κατασκευής επανερμηνεύουν σύγχρονα τα γεωμετρικά μοτίβα των «ξυστών» του Πυργίου Χίου, ενισχύοντας τη μορφολογική ταυτότητα της πρότασης.
Architects:
Λεωνίδας Κουτσουμπός, Αναστάσης ΜαθιουδακηςArea:
1300 m2Location:
ΧίοςProject Year:
2025Date:
November 4, 2021
