TWIN RESIDENCE – CRETE
Η παρούσα μελέτη αφορά την ανέγερση δύο διώροφων αυτόνομων κατοικιών συνολικής επιφάνειας 140 τ.μ. η καθεμία, στην περιοχή Πατσίδων Ηρακλείου Κρήτης. Κύριο ζητούμενο της μελέτης αποτέλεσε η διερεύνηση της χωροθέτησης των δύο κατοικιών σε οικόπεδο μόλις 328τ.μ., με τρόπο που να διασφαλίζεται αφενός η αυτονομία τους και αφετέρου η ανεμπόδιστη οπτική φυγή προς την ανατολή, όπου αναπτύσσεται η θέα προς την οροσειρά και τον κάμπο της περιοχής.
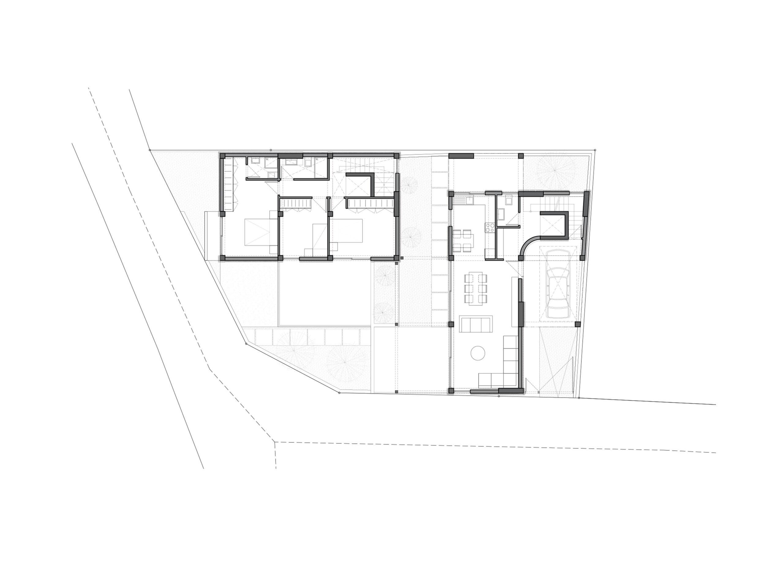
Η έντονη κλίση του οικοπέδου διαδραμάτισε καθοριστικό ρόλο στη συνθετική ιδέα του έργου, καθώς οι δύο κτιριακοί όγκοι χωροθετήθηκαν βαθμιδωτά, ακολουθώντας τη φυσική κλιμάκωση του εδάφους. Με αυτόν τον τρόπο, ο δεύτερος όροφος της μίας κατοικίας λειτουργεί ως προέκταση του πρώτου ορόφου της άλλης, δημιουργώντας μια κλιμακωτή ανάπτυξη της σύνθεσης. Παράλληλα, επιτυγχάνεται σαφής διαχωρισμός των επιμέρους ιδιοκτησιών, τόσο λειτουργικά όσο και οπτικά.
Ο κατακερματισμός και η στροφή των επιμέρους όγκων κάθε κατοικίας ενισχύουν περαιτέρω τη δημιουργία οπτικών φυγών προς το τοπίο. Και στις δύο κατοικίες παρατηρείται μια ελεγχόμενη ολίσθηση και στροφή του δεύτερου ορόφου σε σχέση με τον υποκείμενο, κίνηση που οδηγεί στη δημιουργία νέων υπαίθριων χώρων εκτόνωσης στο δώμα, ημιυπαίθριων στεγασμένων χώρων εισόδου και στάθμευσης στο ισόγειο, ενώ ταυτόχρονα επιτυγχάνεται ένα ογκοπλαστικό παιχνίδι διάσπασης της κλίμακας. Το αποτέλεσμα είναι ένα κτίριο λιγότερο ογκώδες και περισσότερο ενταγμένο στο φυσικό του περιβάλλον.
Η συγκεκριμένη αρχιτεκτονική πρόταση επιχειρεί, μέσω απλών και συμβατικών κατασκευαστικών λύσεων, να προσφέρει ποιοτική κατοίκηση, όπου και οι δύο κατοικίες απολαμβάνουν ισότιμα τα πλεονεκτήματα της ελληνικής υπαίθρου, διατηρώντας παράλληλα το κόστος κατασκευής σε λογικά και ελεγχόμενα πλαίσια.
Architect:
Μαθιουδακης ΑναστάσηςArea:
280 m2Location:
Πατσήδες, Ηράκλειο ΚρήτηςProject Year:
2025Date:
February 1, 2020
